Lubisz ciasteczka? My też!

Chętnie dzielimy się nimi, gdy odwiedzają nas bliscy. Dlatego używamy na naszej stronie plików „cookie” (tzw. "ciasteczek"). Dzięki nim możesz jeszcze łatwiej i wygodniej korzysta

 z naszej oferty.

Aby zapewnić

 jak najlepsze wrażenia, korzystamy z technologii, takich jak pliki cookie, do przechowywania i/lub uzyskiwania dostępu do informacji o urządzeniu. Zgoda na te technologie pozwoli nam przetwarza

 dane, takie jak zachowanie podczas przeglądania lub unikalne identyfikatory na tej stronie. Brak wyrażenia zgody lub wycofanie zgody może niekorzystnie wpłynąć na niektóre cechy i funkcje.

  • Funkcjonalne

Przechowywanie lub dostęp do danych technicznych jest ściśle konieczny do uzasadnionego celu umożliwienia korzystania z konkretnej usługi wyraźnie żądanej przez subskrybenta lub użytkownika, lub wyłącznie w celu przeprowadzenia transmisji komunikatu przez sieć łączności elektronicznej.

  • Statystyka

Przechowywanie techniczne lub dostęp, który jest używany wyłącznie do celów statystycznych.

  • Marketing

Przechowywanie lub dostęp techniczny jest wymagany do tworzenia profili użytkowników w celu wysyłania reklam lub śledzenia użytkownika na stronie internetowej lub na kilku stronach internetowych w podobnych celach marketingowych.


Funkcjonalne (niezbędne)
Analityczne
Marketingowe

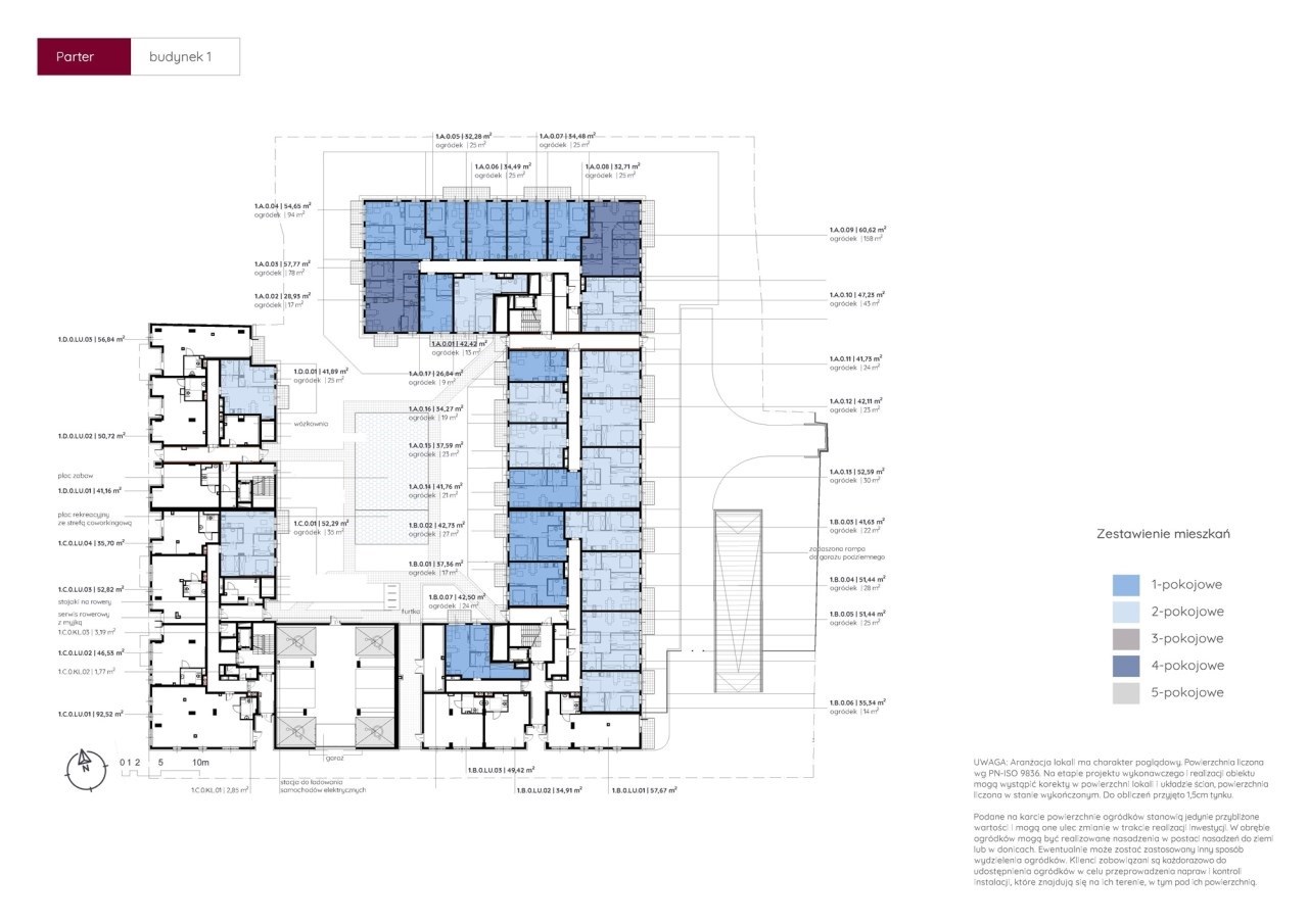
Mieszkanie na sprzedaż Bielsko-Biała

1 pokoj
27.59 m²
11 453,43 zł/m2
2 piętro
FLV-MS-194
Oblicz ratę kredytu

316 000 zł

Mieszkanie na sprzedaż
Bez prowizji

Szczegóły oferty

Symbol oferty FLV-MS-194
Powierzchnia 27,59 m²
Liczba pokoi 1
Piętro 2

Opis nieruchomości

Kupujący nie płaci prowizji oraz podatku PCC.

Na sprzedaż funkcjonalne mieszkanie o powierzchni 27², zlokalizowane w nowoczesnej inwestycji przy ul. Grażyńskiego w ścisłym centrum Bielska-Białej. Lokal znajduje się w jednej z najbardziej atrakcyjnych części miasta – zaledwie ok. 300 m od Galerii Sfera oraz ok. 500 m od dworca głównego.

Mieszkanie stanowi doskonałą propozycję zarówno inwestycyjną (wynajem długoterminowy lub krótkoterminowy), jak i komfortowe miejsce do zamieszkania na co dzień. Lokalizacja w centrum zapewnia pełną infrastrukturę miejską w zasięgu spaceru, dzięki czemu codzienne funkcjonowanie nie wymaga korzystania z samochodu. Dodatkowym atutem jest bardzo dobrze rozwinięta sieć ścieżek rowerowych oraz szybki dostęp do komunikacji publicznej, sklepów, restauracji, usług, instytucji oraz terenów rekreacyjnych.

Mieszkanie posiada funkcjonalny układ obejmujący salon z aneksem kuchennym, łazienkę oraz hol, garderobę - cenne miejsce w kawalerce

Inwestycja została zaprojektowana z myślą o komforcie mieszkańców, nowoczesnych rozwiązaniach technologicznych oraz ekologii. W standardzie przewidziano m.in.:

  • system Smart Home oraz pakiet antysmogowy w każdym lokalu,
  • instalację paneli fotowoltaicznych zasilających części wspólne, co przekłada się na niższe koszty utrzymania,
  • strefę rekreacyjną oraz zieloną przestrzeń coworkingową,
  • plac zabaw dla dzieci,
  • serwis rowerowy z myjką oraz pomieszczenia na wózki i rowery,
  • stanowiska ładowania pojazdów elektrycznych,
  • teren ogrodzony i monitorowany,
  • ogrzewanie oraz ciepłą wodę z sieci miejskiej,
  • garaż podziemny oraz komórki lokatorskie.

Istnieje możliwość skorzystania z kompleksowej obsługi obejmującej, wykończenie mieszkania pod klucz, znalezienie najemcy oraz pełne zarządzanie najmem, co czyni ofertę szczególnie atrakcyjną dla inwestorów.

Planowane zakończenie prac budowlanych przewidziane jest na 2028 rok. Deweloper oferuje korzystny i elastyczny harmonogram płatności umożliwiający bezpieczne zaplanowanie finansowania zakupu.

Kalkulatory

Kalkulator kredytowy

Wysokość raty

PLN
%

Kalkulator kosztów

Taksa notarialna
(opłata notarialna)

Wniosek o wpis do WKW

VAT od prowizji
agencji nieruchomości

Vat od taksy notarialnej
(opłaty notarialnej)

Prowizja agencji nieruchomości

Wypisy aktu notarialnego

Razem

Uwaga: mogą wystąpić dodatkowe opłaty za założenie księgi wieczystej oraz ustanowienie hipoteki.

PLN
PLN
PLN
PLN
PLN
%
PLN

Podobne oferty

Mieszkanie na sprzedaż

Bielsko-Biała

1 pokoj 27 m2 11 300,00 zł/m2

Mieszkanie na sprzedaż

Bielsko-Biała

26 m2 11 531,05 zł/m2
Nowa oferta

Mieszkanie na sprzedaż

Bielsko-Biała

2 pokoje 34 m2 11 906,84 zł/m2
Nowa oferta
Nowa oferta

Mieszkanie na sprzedaż

Bielsko-Biała, Stare Bielsko

1 pokoj 26 m2 11 042,08 zł/m2
Nowa oferta

Agent

Proszę wprowadzić poprawne imię i nazwisko
Proszę wprowadzić poprawny numer telefonu
Proszę wprowadzić poprawny adres e-mail
Proszę zaznaczyć wymagane zgody
Rozwiąż równanie:
10 5
Niepoprawny wynik